|
一、概述
DRB-L系列電動潤滑泵適用于潤滑點多,分布范圍廣,給油頻率高的雙線式干油集中潤滑系統。通過雙線分配器向潤滑部位供送潤滑脂,可滿足各種機器設備的需要,對于大型機組和生產線尤為適宜。
該系列電動潤滑泵可組成雙線環式集中潤滑系統,即系統的主管路組成環狀布置,由返回潤滑泵的主管道末端的系統壓力來控制液壓換向閥,使兩條主管道交替地供送潤滑脂的集中潤滑系統;見外形圖和外形尺寸表的規定。也可組成雙線終端式集中潤滑系統,即由主管道末端的壓力操縱閥來控制電磁。換向閥交替地使兩條主管道供送潤滑脂的集中潤滑系統,也見外形圖和外形尺寸的規定。
該系列電動潤滑泵采用雙柱塞機構,運轉可靠,減速機構置于泵體內,結構緊湊,體積小,配以相應的電控箱可以實現自動控制。
|
|
|
|
二、技術參數
|
型號
|
公稱壓力MPa
|
公稱流量
|
貯油器
|
配管方式
|
電機型號
|
電動機功率kW
|
減速比
|
轉速r/min
|
減速器潤滑油量L
|
重量kg
|
|
標準型號
|
引進型號
|
ml/min
|
容積L
|
|
DRB-L60Z-H
|
U-25AL
|
20
|
60
|
20
|
環式
|
A02-7124
|
0.37
|
1:15
|
100
|
1
|
140
|
|
DRB-L60Z-Z
|
U-25AE
|
終端式
|
160
|
|
DRB-L195Z-H
|
U-4AL
|
195
|
35
|
環式
|
Y802-4
|
0.75
|
1:20
|
75
|
2
|
210
|
|
DRB-L195Z-Z
|
U-4AE
|
終端式
|
230
|
|
DRB-L585Z-H
|
U-5AL
|
585
|
90
|
環式
|
Y90L-4
|
1.5
|
5
|
456
|
|
DRB-L585Z-Z
|
U-5AE
|
終端式
|
416
|
使用介質為錐入度不低于265(25℃,150g)1/10mm的潤滑脂(NLGI0#-2#)。
|
|
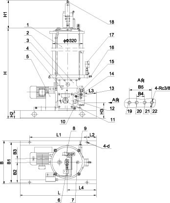
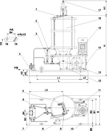
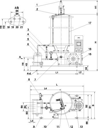
DRB-L系列電動潤滑泵外形尺寸
|
|
型號
|
L
|
B
|
H
|
L1
|
L2
|
L3
|
L4
|
B1
|
B2
|
B3
|
B4
|
|
DRB-L60Z-H
|
640
|
360
|
986
|
500
|
70
|
126
|
290
|
320
|
157
|
23
|
42
|
|
DRB-L60Z-Z
|
780
|
640
|
450
|
200
|
160
|
|
DRB-L195Z-H
|
800
|
452
|
1056
|
600
|
100
|
125
|
300
|
420
|
226
|
39
|
42
|
|
DRB-L195Z-Z
|
891
|
800
|
500
|
160
|
|
DRB-L585Z-H
|
1160
|
585
|
1335
|
860
|
150
|
100
|
667
|
520
|
476
|
244
|
111
|
|
DRB-L585Z-Z
|
667
|
239
|
160
|
|
|
|
|
型號
|
B5
|
B6
|
H1
|
H2
|
H3
|
H4
|
D
|
d
|
地腳螺栓
|
|
最大
|
最小
|
|
DRB-L60Z-H
|
118
|
20
|
598
|
155
|
60
|
130
|
-
|
269
|
14
|
M12x200
|
|
DRB-L60Z-Z
|
-
|
85
|
|
DRB-L195Z-H
|
118
|
16
|
687
|
167
|
83
|
164
|
-
|
319
|
18
|
M16x400
|
|
DRB-L195Z-Z
|
-
|
108
|
|
DRB-L585Z-H
|
226
|
22
|
815
|
170
|
110
|
248
|
277
|
457
|
22
|
M20x500
|
|
DRB-L585Z-Z
|
-
|
135
|
-
|
|
|
|
|
三、型號說明
|
|
|
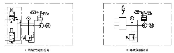
四、圖型符號
|
|
|
|
|
|
|
五、接線指示
|
|
|
|
|
|
六、工作原理
|
該系列電動潤滑泵由柱塞泵、貯油器、換向閥、電動機等部分組成。柱塞泵在電動機的驅動下,從貯油器吸入潤滑脂,壓送到換向閥,通過換向閥交替地沿兩個出油口輸送出去,當一個出油口壓送潤滑脂時,另一出油口與貯油器接通卸荷。
環式結構電動潤滑泵配用液壓換向閥,有四個接口,外接兩根供油主管分別由兩根供油管引回的回油管,依靠回油管內油脂的油壓推動換向閥換向。
終端式結構電動潤滑泵配用電磁換向閥,有二個接口,外接二根供油主管,依靠電磁鐵的得失電實現換向供油。
柱塞泵換向閥的動作原理詳見使用說明書。
|
|
|
七、使用說明
1、該系列電動潤滑泵應安裝在環境溫度合適,灰塵少,振動小,便于調整、檢查、維護保養及補脂方便的地方并且盡可能布置在系統的中心位置,縮短系統配管長度,保持最低壓力降,使泵能產生足以克服潤滑點阻力的壓力。
2、使用前先向柱塞泵的減速腔內加入N220的工業齒輪油至油標規定液面。
3、向貯油器內補脂使用DJB-V70型電動加油泵從潤滑泵的補給口補進,使用的潤滑脂應清潔,不允許夾雜有污物。
4、潤滑泵的回轉方向是單向的,使用時必須按電機上旋向牌規定的旋向接線使用。
5、泵溢流閥的標準設定壓力為23MPa,可以在0~20MPa范圍內任意調節,在使用時不允許超過泵公稱壓力的15%(23MPa)。
6、環式潤滑泵的液壓換向閥的設定壓力按5MPa調定。
7、該系列電動潤滑泵為室內安裝型,在室外或環境惡劣的場合使用時,必須采取防護措施。
|
|
|
|
八、外型圖
|

|
|
DRB-L60Z-H、DRB-L195Z-H型電動泵外形圖 DRB-L585Z-H型電動泵外形圖
|
|
|

|
|
DRB-L60Z-Z, DRZB-L195Z-Z型電動泵外形圖 DRB-L585Z-Z型電動泵外形圖
|
|
|
九、訂貨須知
1、本系列電動潤滑泵配用以下四種形式標準電控箱,可根據不同控制要求選擇。
1.1 DEA-2E型終端式電控箱
1.2 DEA-2L型環式電控箱
1.3 R1902型環式帶補脂控制電控箱
1.4 R1904型終端式帶補脂控制電控箱
2、本系列電動潤滑泵分部件訂購按下表選型
|
|
|